ID CP2915885

Casa versatila P+E+M in zona isorica Sinaia

ID CP2915885

630,000 €

Casă / Vilă cu 8 camere de vânzare
Sinaia, Timisoara
418 mp
1950

Prin Silvis Imobiliare vă propunem spre achiziție o proprietate versatilă, cu arhitectură distinctă, situată în zona istorică a orașului, beneficiind de acces auto facil și proximitate imediată față de centrul orașului, parc, restaurante, zone comerciale și principalele atracții turistice.

Imobilul dispune de regim de înălțime P+E+M și o suprafață construită de aproximativ 420 mp, fiind ideal atât pentru rezidență premium, cât și pentru conversie în:

pensiune

sediu de reprezentanță

clinică medicală

grădiniță / after school

salon de beauty

Compartimentare funcțională

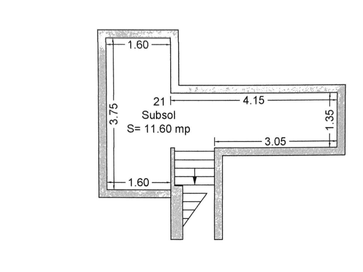
Subsol ( 11 mp )

Spațiu tehnic ce găzduiește centrala termică și boilerul care deservesc întreaga proprietate.

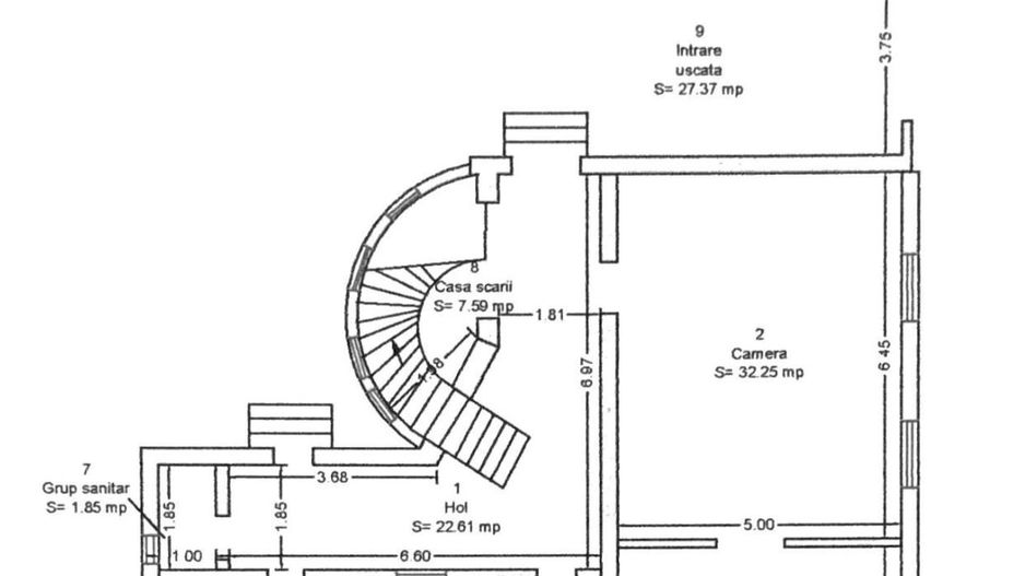
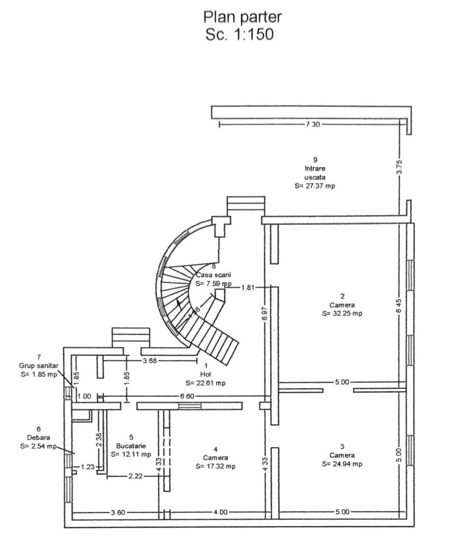
Parter ( 121 mp )

Hol generos de acces, trei camere, bucătărie, debara, grup sanitar și casa scării – configurare ce permite adaptarea spațiului în funcție de destinația dorită.

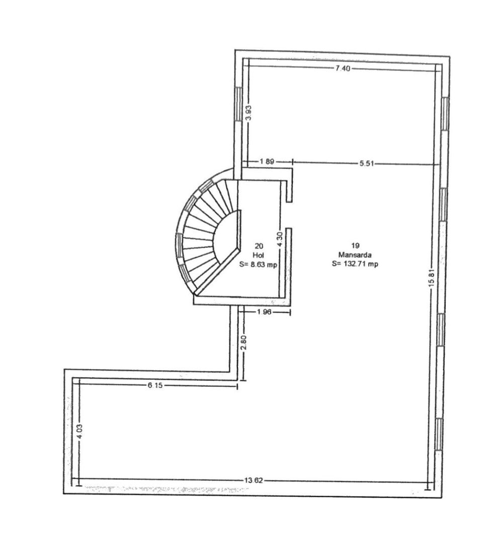
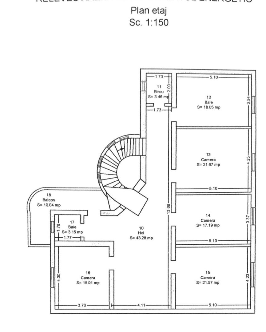
Etaj ( 144 mp )

Hol de distribuție, patru camere, birou, baie principală cu cadă și geam pentru lumină naturală, plus baie de serviciu, balcon deschis cu vedere inspre curte

Mansardă ( 141 mp )

Spațiu open-space amenajat, cu potențial ridicat de recompartimentare.

Caracteristici suplimentare:

Izolație exterioară

Acces auto în curte

Amplasare într-o zonă cu valoare arhitecturală și turistică consolidată

Potențial investițional ridicat

Această proprietate se adresează celor care caută o vilă cu personalitate, într-un cadru istoric consacrat, oferind atât confort rezidențial, cât și oportunități excelente de valorificare investițională.

Citește mai mult

  • Număr camere
    8
  • Dormitoare
    5
  • Număr bucătării
    1
  • Număr băi
    2
  • Geam la baie
    Da
  • Număr balcoane
    1
  • Număr locuri parcare
    2
  • Disponibilitate
    Imediat
  • Tip casă
    Individual
  • Stare interior
    Bună
  • Anul finisării
    2015
  • Suprafață utilă
    418 mp
  • Suprafață construită
    496 mp
  • Suprafață construită la sol (Amprentă)
    121.0 mp
  • Suprafață teren
    347 mp
  • Suprafață curte liberă
    220 mp
  • Deschidere
    18 m
  • Acoperiș
    Țiglă
  • Stadiu construcție
    Finalizată
  • An construcție
    1950
  • Tip construcție
    Cărămidă
  • Reabilitat termic
    Da
  • Număr etaje clădire
    1
  • Număr subsoluri
    1
  • Are mansardă
    Da

Facilități

Acoperiș
Aer condiționat
Apă
Apometre
Aragaz
Bideu
Bucătărie deschisă
Bucătărie mobilată
Bucătărie utilată
Cabină de duș
Cadă
Calorifere
Canalizare
CATV
Centrală imobil
Centrală proprie
Contor electric
Contor gaz
Curent
Curte
Debara
Dressing
Facilități sportive
Faianță
Ferestre care se deschid
Ferestre PVC
Frigider
Gaz
Geamuri termopan
Grădină proprie
Gresie
Hotă
Iluminat stradal
Interfon
Internet
Izolație exterioară
Loc de joacă copii
Mașină de spălat rufe
Mijloace de transport în comun
Mobilat parțial
Mochetă
Parcare acoperită
Parcare biciclete
Parcare deschisă
Parchet
Pivniță
Rulouri / obloane lemn
Scară interioară
Sistem de alarmă
Sobă / Teracotă
Spații agrement
Străzi asfaltate
Străzi betonate
Telefon
TV
Ușă intrare lemn
Ușă intrare metal
Uși interior lemn
Vedere panoramică
Vedere spre oraș
Vopsea lavabilă
WC Serviciu
Zonă pentru barbeque
Surmei Radu
Manager

0731179611


Solicită chiar acum o vizionare
Telefon
Sună acum Solicită vizionare
Necesare:

Site-ul nu poate funcționa corect fără aceste cookie-uri. Vezi cookie-urile

Statistică:

Strângem statistici anonime despre voi, vizitatorii unici, pentru a vă îmbunătăți experiența dumneavoastră. Vezi cookie-urile

Marketing:

Pentru a ne promova mai eficient serviciile noastre, folosim cookies pentru a vă identifica și a vă oferi proprietăți și servicii personalizate. Vezi cookie-urile

Acest site folosește cookies, află detalii. Alege ce tipuri de cookies dorești să permitem: